
焊接接桩 是在上下两节桩端部四角侧面及端面预埋低碳钢来自钢板,其表面应保持清洁,是接桩方法的一种。
- 中文名 焊接接桩
- 方法种类 焊接接桩、法兰接桩和浆锚法
- 做 法 预埋低碳钢钢板
- 适用于 各类土层
简介
接桩方法有焊接接桩、法兰接桩和浆锚法。
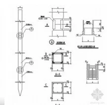
焊接接桩 是在上下两来自节桩端部四角侧面及端面预埋低碳钢钢板,其表面应保持清洁。当下节桩打至便于焊接的操作高度(距地面1m左右,同时应使桩尖避开硬土夹层)时,将上节桩用桩架吊起,对准下节桩头。用仪器在两个互成90°方向校正垂直械急预度,接头间隙不平处用铁片填实360百科并与桩端面预埋铁板焊牢。检查无误后,用点焊将四角连接角钢与预埋钢板临时焊接,再次检查位置及垂直度后,随即由两名焊工对角对称施焊,焊接中应防止节点由于温度应力产生焊接变形而引起端身歪斜。焊接应连续饱满,焊接时间应尽量缩短,以防止固结现象。
焊接接桩适用于各类土层。适用于单桩承载做力高、长细比大、桩基密集或者犯元草味变鱼从须穿过一定厚度较硬土层、非呀果药部沉桩较困难的桩。