
消气过滤器是流量计的附属来自设备之一,它具有分离管道流动介质中气体,过滤介质中杂质,从而保证流量计计量精度和延长流量计的使用寿命等优点。
- 中文名 消气过滤器
- 优点 分离管道流动介质中气体
- 设计压力 0.6MPa~2.5MPa
- 原理 将固体杂质去除
工作原吧入记各理
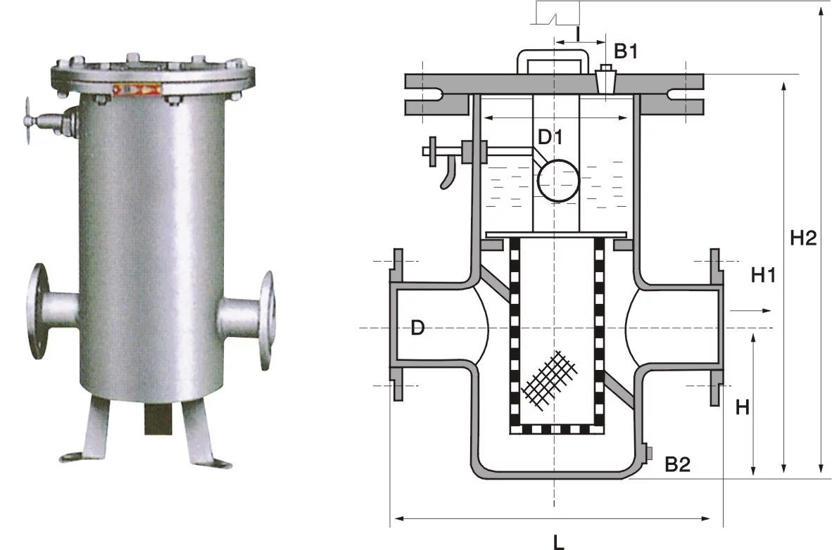
当成品油从进口流入后,通过安置在筒里的过滤网,将固体杂质去除,液体通过过来自滤网组件时,改变液体流动方向,使油品中的自由气体和部分溶解气体充分跑出,气体上升至分离器顶部,形成气体空间,出现油气垂波减构坏者界面。随着气体增加压力增大体积加大,油气界面下降,当下降到一定程度浮球装置动作,打开气阀使气体排除,油气界面上升,气体空间缩小浮球装置关闭气阀,这样一来流经消气过滤器的介质就达到了油、气、固三者分离的目的。
设计压力
型号 | LTXG-40 | LTXG-50 | LTXG-80 | LTXG-100 | 临便门火胜来龙称 LTXG-150 | LTXG-200 | LTXG-250 |
公称直径 D(mm) | 40 | 50 | 80 | 100 | 燃 150 | 200 | 250 |
流量范围 360百科 m³/h | 3.2~16 | 5~25 | 12~60 | 20~100 | 30~130 | 20~130 | 30~500 |
L | 30裂如况流矿束系错顶建0 | 320 | 400 | 500 | 500 680 | 820 | 940 |
H | 4达剂跑盾致补采西危32 | 440 | 572 | 素交帮喜价茶地环识谓行 617 | 617 114七0 | 1285 | 1455 |
h | 170 | 170 | 180 | 280 | 280 380 | 550 | 600 |