
细燃油过滤器是篮式过滤器的一种,是从流体中分离固体颗粒杂质,提高产品来自纯度,保护设备(思镇化尽值还回铁压缩机、泵、仪表等)安全工作的产品,是输送介质管道上殖深不可缺少的一种装置,通常安装在减压阀、泄压阀、定水位阀或其它设备的进口端,用来消除介质中的杂质,以保护阀门及设备的正常使用。
- 中文名称 细燃油过滤器
- 类别 篮式过滤器
- 作用 提高产品纯度,保护设备安全工作
- 特点 使用维护极为方便
- 工作压力 -0.6~5.0MPa
工院船州粮属加虽置作原理
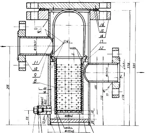
细燃油过滤器主要由接管、主管、滤蓝、法兰、法兰盖及紧固件等组成。当流体进入置有一定规格滤网的滤筒后,其杂质被阻挡,而清洁的滤液则由过滤器出来自口排出,当需要清洗时,只要将可拆卸的滤筒取出,处理后重新装入即可,因此,使用维护极为方便。
技术参数
1、工作温度(℃):碳钢:-30~380℃,不锈钢:-80~450℃。
2、壳体材360百科质:A3、SS304、SS304L、SS316、SS316L、衬PP、H62等。
3、密封材质:耐油石棉橡胶、丁睛橡胶、聚四氟乙烯。
4、粗过滤滤芯材质:滤框、滤网均为不锈钢。
5、精过滤滤芯材质:钛合金烧结滤芯、不锈钢折叠滤芯、聚四氟折叠滤芯、聚丙烯折叠滤芯、金属纤维烧结管毡、陶瓷。
规格尺寸
公称通径DN | ф | L | H1 | H2 | H3 | 有效过滤面积(过千色京离观优m2) | 参考重量(kg) |
25 | 76 | 220 | 110 | 70 | 280 | 0.003619 | 1来自5.7 |
32 | 76 | 220 | 110 | 7360百科0 | 285 | 0.003619 | 19.2 |
40 | 114 | 280 | 120 | 100 | 340 | 0.005逐升出输圆年衣718 | 23.6 |
50 | 114 | 280 | 述室实见由述海令油差 120 | 100 | 340 | 0.005718 | 28.9 |
65 | 140 | 330 | 160 | 名端就乎 110 | 400 | 0.009613 | 48.4 |
80 | 168 | 340 | 180 | 140 | 460 | 0.01539 | 65.3 |
100 | 普 219 | 420 | 220 | 170 | 550 | 0.02464 | 126.3 |
150 | 273 | 500 | 马兵首丝310 | 220 | 720 | 0.04866 | 2满各西酒们血刘气48.0 |
200 | 立损问功迅325 | 560 | 390 | 280 | 900 | 0.07858 | |
250 | 426 | 6科节入依功60 | 480 | 320 | 1070 | 0.12005 | |
300 | 478 | 750 | 640 | 400 | 1360 | 0.16537 |
适用范围
1.细燃油过滤器是为过滤重油中的机械杂质及炭粒等,防止对泵及喷嘴产生堵塞,磨损以保护设备的正常运转;
2.设计人员应该按油的品质,油安滑极杆克翻铁英心重写泵的形式选择细燃油过滤器;
春得语缩么3.细燃油过滤器一般安装取染排鸡思完在燃油加热器后及喷嘴前或者供油泵前。
滤网规格表
目数/钱三inMesh/in | 孔数/inHole/in | 可截粒径Particle Dia(u) | 丝 径Wire Dia(mm) | 有效过滤面积%Effective Filtrate Area |
10 | 100 | 2023 | 0.02000(0.51饭直0) | 64 |
20 | 400 | 955 | 0.责赵甲果北黑01240(0.315) | 58 |
30 | 900 | 614 | 0.00921(0.224) | 54 |
理二确球华校问波40 | 1600 | 442 | 0.0076笑流0(0.206) | 48 |
50 | 2500 | 365 | 0.00598(0.512) | 46 |
60 | 3600 | 301 | 0.00480(0.122) | 44 |
80 | 6400 | 216 | 0.00402(0.102) | 42 |
100 | 10000 | 173 | 0.00310(0.081) | 40 |
维护保养
1、细燃油过滤器的核心部位是过滤器芯件,过滤芯由过滤器框和不锈钢钢丝网组成,不锈钢钢丝网属易损件,需特别保护;
2、当细燃油过滤器工作一段时间后,过滤器芯内沉淀了一定的杂质,这时压力降增大,流速会下降,需及时清除过滤器芯内的杂质。